盐边县自然资源和规划局 关于关于攀枝花钒钛化工园区安宁片区基础设施建设项目一特勤消防站建设项目主楼立面颜色及其他修改调整变更公示
发布时间:2025-11-05 来源:盐边县自然资源和规划局 选择阅读字号:[ 大 中 小 ] 阅读次数:
盐边县自然资源和规划局
关于攀枝花钒钛化工园区安宁片区基础设施建设项目一特勤消防站建设项目
主楼立面颜色及其他修改调整变更公示
我局收到盐边钒钛投资集团有限公司《关于攀枝花钒钛化工园区安宁片区基础设施建设项目一特勤消防站建设项目主楼立面颜色及其他修改调整的函》(盐边钒钛函〔2025〕40号)。因原方案设计外立面主楼颜色为红色、浅驼灰色、银白色,外观风貌不满足《四川省消防救援总队基层正规化建设图解》的规定等申请调整变更。经核实,现将方案设计变更内容公示如下。
一、变更内容
1.变更消防站主楼、训练塔及门卫室外立面颜色,由原来的红色、浅驼灰色、银白色变更为乳白色和白灰色。
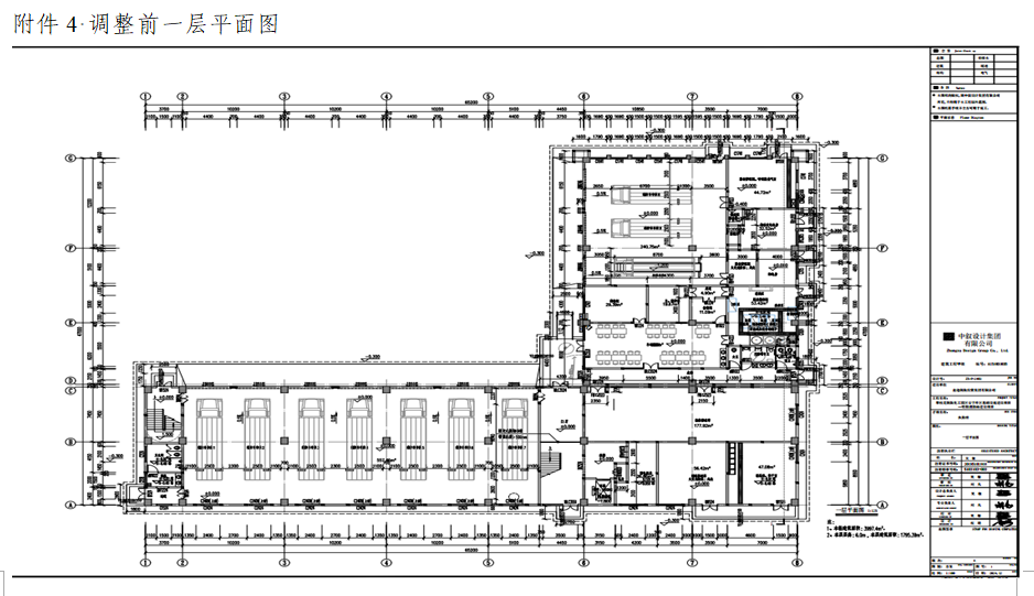
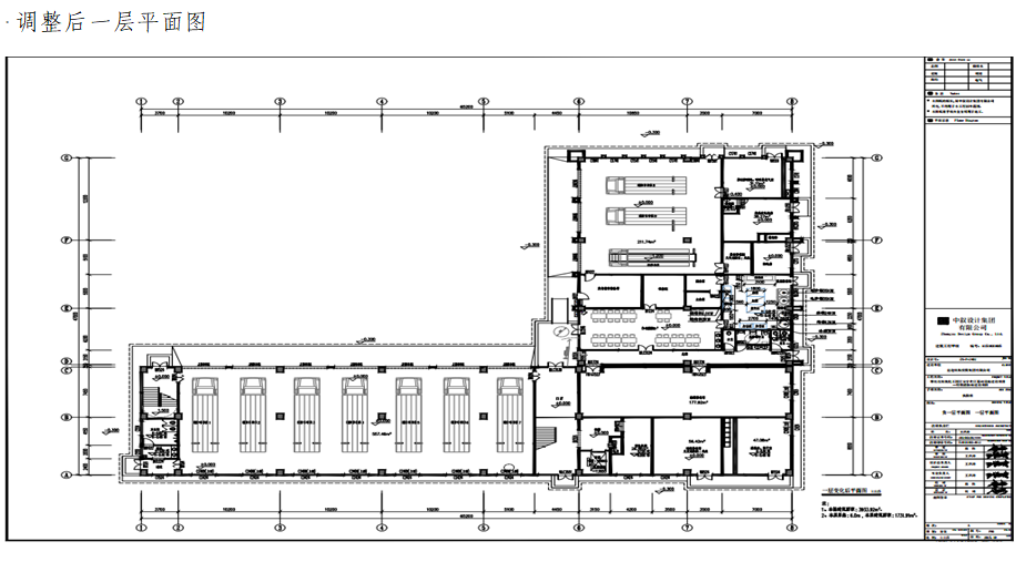
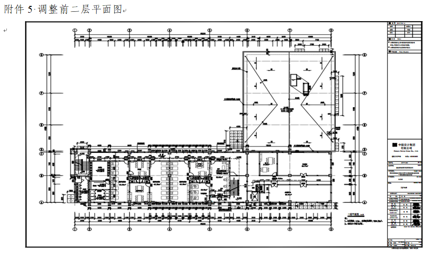
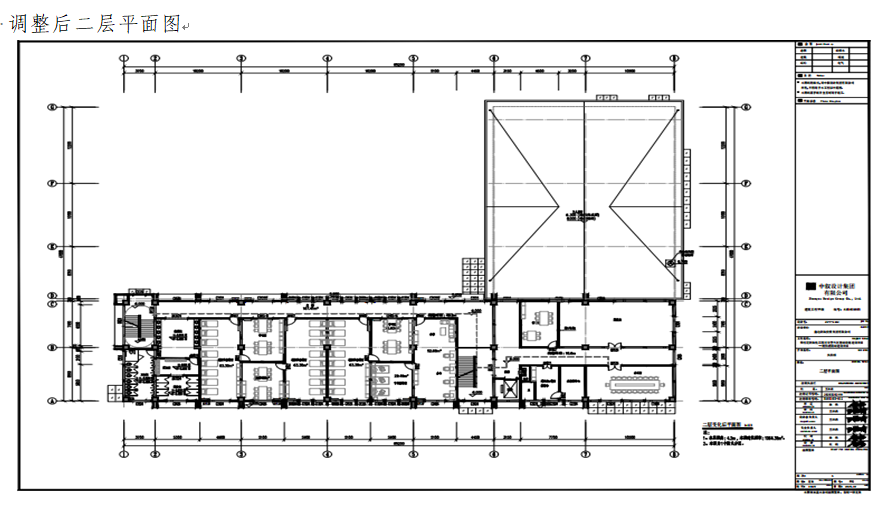
2.消防站主楼修改一层厨房布局,修改范围为 6-8轴交D-F轴,二层取消备勤室卫生间,修改范围为3-5轴交B轴。
3.篮球场向主楼移动2米,消防水池由原来的19米×13米调整为21.6米×11米。
二、公示地点
盐边县自然资源和规划局公示栏、项目施工现场、盐边县人民政府网。
三、公示期限
2025年11月5日—2025年11月13日(7个工作日)
四、意见反馈渠道
在公示期限内,若有意见,请通过电话或书面邮寄方式向盐边县自然资源和规划局空间规划和用途管制股反馈意见,反馈意见请以真实姓名和联系地址方式进行,否则不予受理。
联系地址:盐边县自然资源和规划局515室
联 系 人:王 敏
邮 编:617100;联系电话:0812—3968828
特此公示。
附件 1.调整前正立面图、调整后正立面图
2.调整前北立面图、调整后背立面图
3.调整前总平面布置图、调整后总平面布置图
4.调整前一层平面图、调整后一层平面图
5.调整前二层平面图、调整后二层平面图
盐边县自然资源和规划局
2025年11月5日













