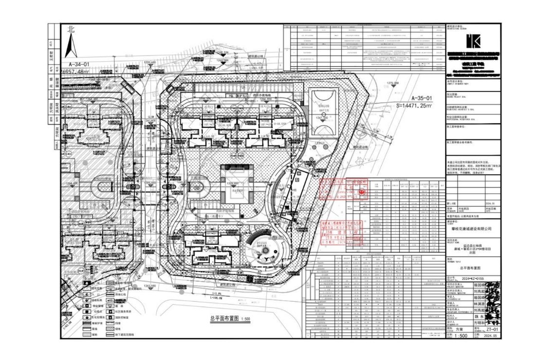
盐边县红格镇康城·馨苑小区6-8#楼项目调整方案设计总平面布置图公示
发布时间:2024-06-24 来源:盐边县自然资源和规划局 选择阅读字号:[ 大 中 小 ] 阅读次数:
公示
应攀枝花康城建设有限公司申请,根据《中华人民共和国城乡规划法》《四川省城乡规划条例》等相关法律法规,我局对盐边县红格镇康城·馨苑小区6-8#楼项目调整方案设计总平面布置图进行公示。
一、公示方式及公示地点
盐边县自然资源和规划局公示栏、盐边县人民政府网(http://www.scyanbian.gov.cn/)、盐边县红格镇康城·馨苑小区6-8#楼项目现场。
二、公示期
2024年6月24日—7月2日(7个工作日)。
公示期内,涉及该项目的相关利害关系人对该项目方案设计有异议者,请出具真实姓名和有效联系方式将书面意见送达盐边县自然资源和规划局,且在法定时限内,相关利害关系人享有要求听证的权利。
公示期满,我局将依法盐边县红格镇康城·馨苑小区6-8#楼项目调整方案设计进行审批。
联系地址:盐边县自然资源和规划局515室
联 系 人:王敏 李勇春
邮 编:617100;联系电话:0812—3968828。
盐边县自然资源和规划局
2024年6月24日




