盐边县自然资源和规划局关于攀枝花市盐边县红果片区危旧房棚户区改造项目外墙饰面颜色设计变更的公示
发布时间:2023-08-14 来源:盐边县自然资源和规划局 选择阅读字号:[ 大 中 小 ] 阅读次数:
盐边县自然资源和规划局
关于攀枝花市盐边县红果片区危旧房棚户区
改造项目外墙饰面颜色设计变更的公示
盐边自规〔2023〕27号
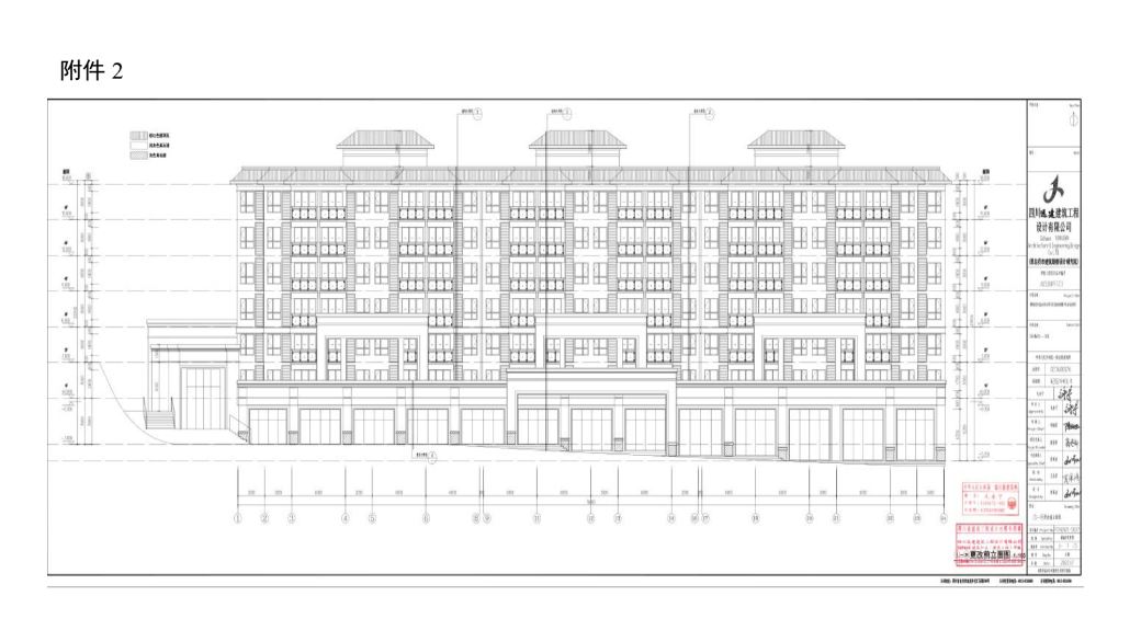
我局收到《关于攀枝花市盐边县红果片区危旧房棚户区改造项目外墙饰面设计变更的报告》。原设计的外墙饰面大面积为浅灰色真石漆、墙裙为灰色真石漆。施工过程中考虑红果彝族乡的民族文化及人文环境,经多种样板漆面参与比对,取消原墙裙灰色真石漆,整个外墙饰面均使用浅灰色真石漆,与周边环境搭配更为协调。经现场核实,原则同意调整规划设计变更。现将设计变更公示如下:
一、变更内容:所有外墙面墙裙灰色真石漆取消,变更为与外墙面一致的浅灰色真石漆。
二、公示地点:盐边县自然资源和规划局公示栏、项目施工现场、盐边县人民政府网。
三、公示期限:2023年8月14日—2023年8月22日(7个工作日)
四、意见反馈渠道:在公示期限内,若有意见,请通过电话或书面邮寄方式向盐边县自然资源和规划局空间规划和用途管制股反馈意见,反馈意见请以真实姓名和联系地址方式进行,否则不予受理。
联系地址:盐边县自然资源和规划局501室
联 系 人:王 敏
邮 编:617100;联系电话:0812—3968828
特此公示。
附件:1.四川远建建筑工程设计有限公司变更通知单
2.变更前立面图
3.变更后立面图
4.变更前后效果图
盐边县自然资源和规划局
2023年8月14日







