安宁加油加气站方案设计公示
发布时间:2025-10-28 来源:盐边县自然资源和规划局 选择阅读字号:[ 大 中 小 ] 阅读次数:
公示
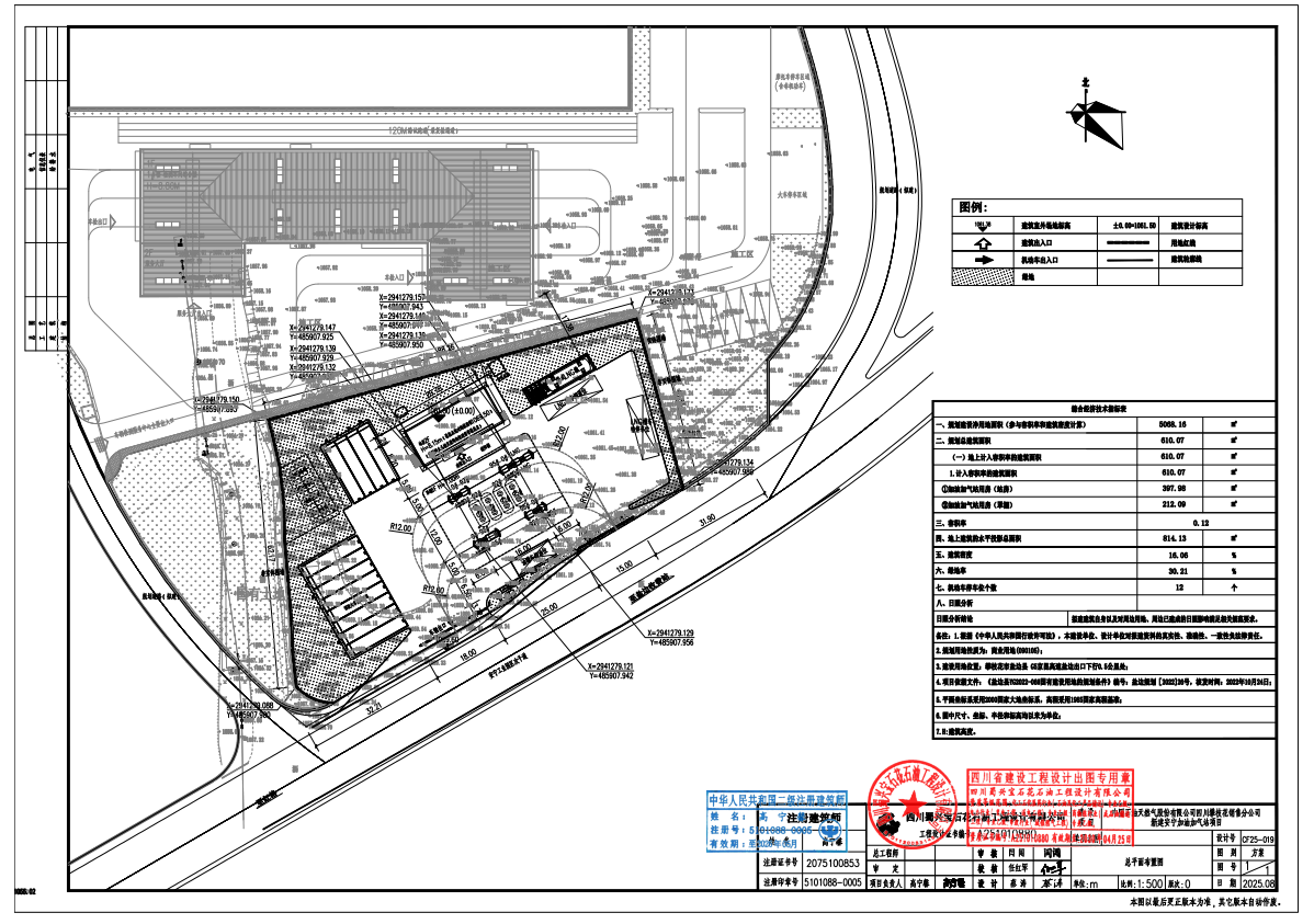
应中国石油天然气股份有限公司四川攀枝花销售分公司申请,根据《中华人民共和国城乡规划法》《四川省城乡规划条例》等相关法律法规,我局于2025年8月26日—9月3日对新建安宁加油加气站项目方案设计总平面布置图进行了公示,因该项目总平面布置图布局调整,现对该项目方案设计总平面布置图重新进行公示。
一、公示方式及公示地点
盐边县政务服务中心公示公告栏、盐边县人民政府网(http://www.scyanbian.gov.cn/)、新建安宁加油加气站项目现场。
二、公示期
公示期内,涉及该项目的相关利害关系人对该项目方案设计有异议者,请出具真实姓名和有效联系方式将书面意见送达盐边县自然资源和规划局,且在法定时限内,相关利害关系人享有要求听证的权利。
公示期满,我局将依法对新建安宁加油加气站项目方案设计进行审批。
联系地址:盐边县自然资源和规划局515室
联 系 人:王敏 李勇春
邮 编:617100;联系电话:0812—3968828
盐边县自然资源和规划局
2025年10月28日
总平面布置图




